work
about
contact
RojunMan
work
about
contact
RojunMan
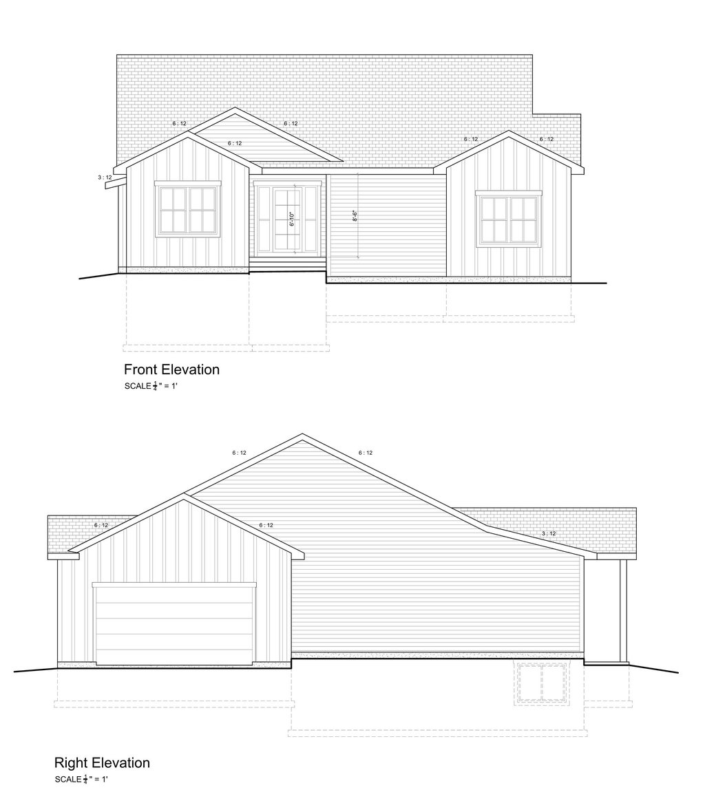
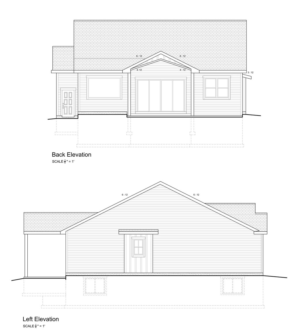
Stone Creek Blk 4 Lot 9
Working drawings